✏️ 30/Mar/2026
RM 18,000/month
📍 Gelang Patah, Tanjung Pelepas , Johor
I-Parc
🛌
1Beds
🚿
2Bathrooms
🏘️
10,000Square Feet
Property Highlights
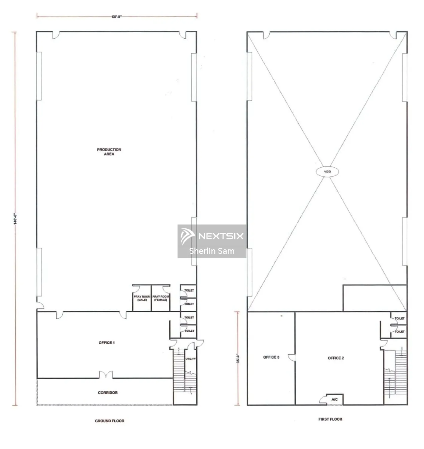
200amp factory
Property Details
Listing Category
Industrial
Property Listing
Subsale
Property Category
Factory/Warehouse
Property Type
Detached Factory
Tenure
Freehold
Property Furnishing
Partly Furnished
Description
For Rent I-Parc @ Port Tanjung Pelepas, PTP Detached Factory * Type: Detached Factory * * Land area: 100x200 * - Built up area: 10,000 sqft * * Ceiling heights: 9 meter * * Power supply: 200amp 3 phase * Asking rent: RM 18k /mth * Available in May 2026 ☎️☎️☎️ 𝗦𝗔𝗠 𝗪𝗝 𝐓𝐑𝐑 - 𝐌 𝐅𝐈𝐆𝐇𝐓𝐄𝐑𝐒 (𝟎𝟏𝟐-𝟔𝟕𝟔 𝟖𝟔𝟐𝟕) http://wasap.my/60126768627/iparc18kmfg1938
Nearby

Sherlin Sam
012-6768627
Private Advertiser

























