RM 460,000
Mandarin Residence
Property Highlights
New Highway To Greenland Kek Lok Si Night View Only 9 Unit Per Floor Free 2 Carpark
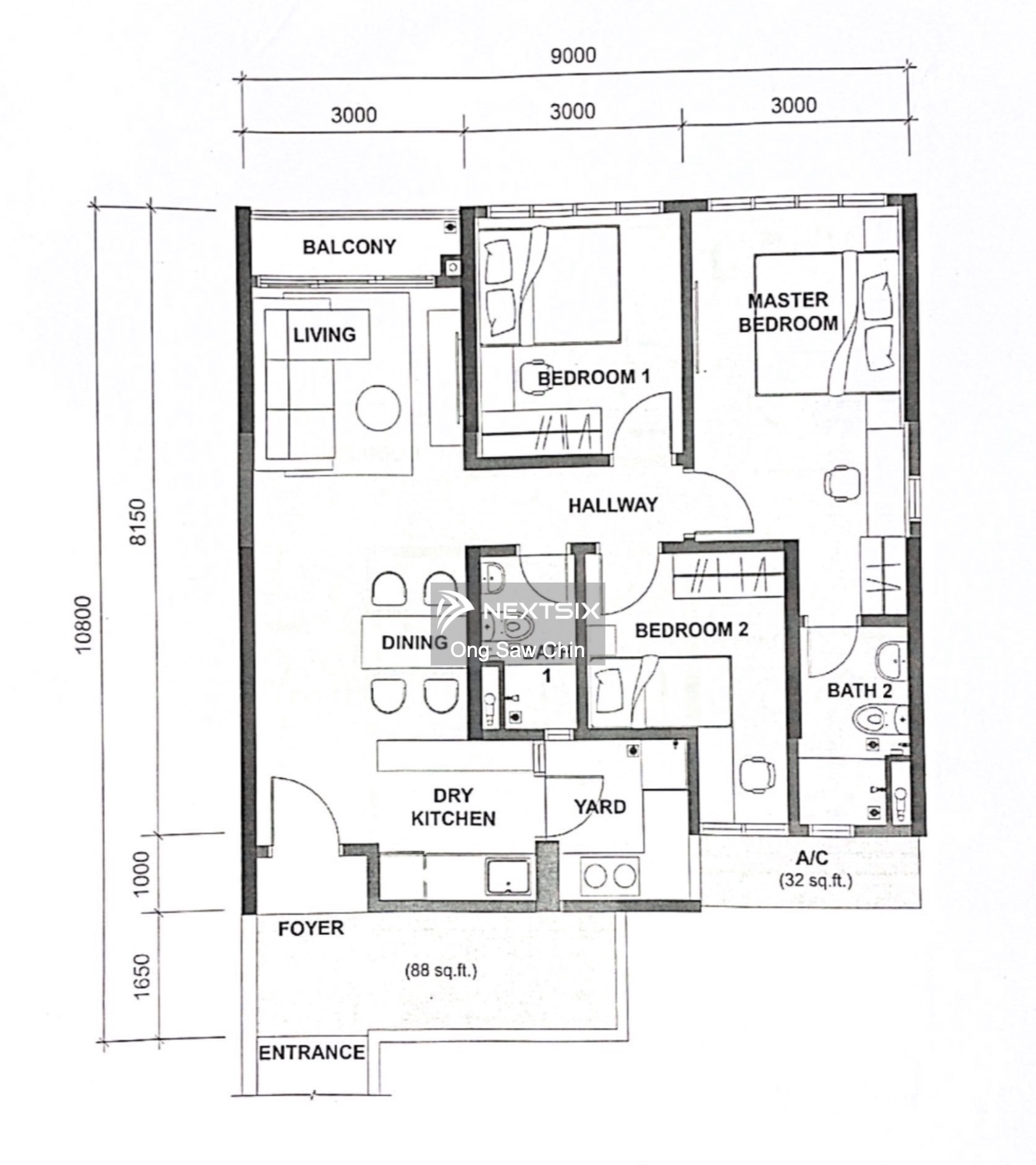
Storey Plan
Property Details
Listing Category
Property Listing
Property Category
Property Type
Tenure
Property Furnishing
Description
🏡 Size : 850SQ.FT + 120++ SQ.FT 🛌🏻 Bedroom & Bathroom : 3B2B 🚗 carparks : 2 🧑🤝🧑 9 units per floor 👉🏻 Density : 646 units ⏫ Lift : 4 lift 🏢Storey : 38 floors 🏊Maintenance Fees : RM0.25 psf only 🏛️ Title : Residential Title 📊 freehold ✨Completion 2027
Facilities
🍖 BBQ
🅿️ Parking
💪 Gymnasium
🏃 Jogging Track
🛝 Playground
🏊 Swimming Pool
🏊♀️ Wading Pool
Nearby

Mortgage Calculator
Loan Amount
RM 0
Disclaimer
The results from this calculator are provided as a general basis for information and do not constitute approval from any bank or financial institution. Any person acting in reliance of this information does so entirely at their own risk. The Next Six Sdn Bhd is not responsible for any loss arising directly or indirectly as a result of any action or omission made in reliance of any information presented.













