RMย 640,000
Bandar Putra
Property Highlights
Developing Area ๐๏ธ beside Roadside of Tuaran By pass and easy to access to Pan Borneo Highway ๐ฃ๏ธMcdonald & Petronas & Bandar Sierra Grand Merdeka ๐ฌ๐ช๐ซ Completed 2 Storey Shop Office ๐ฌ
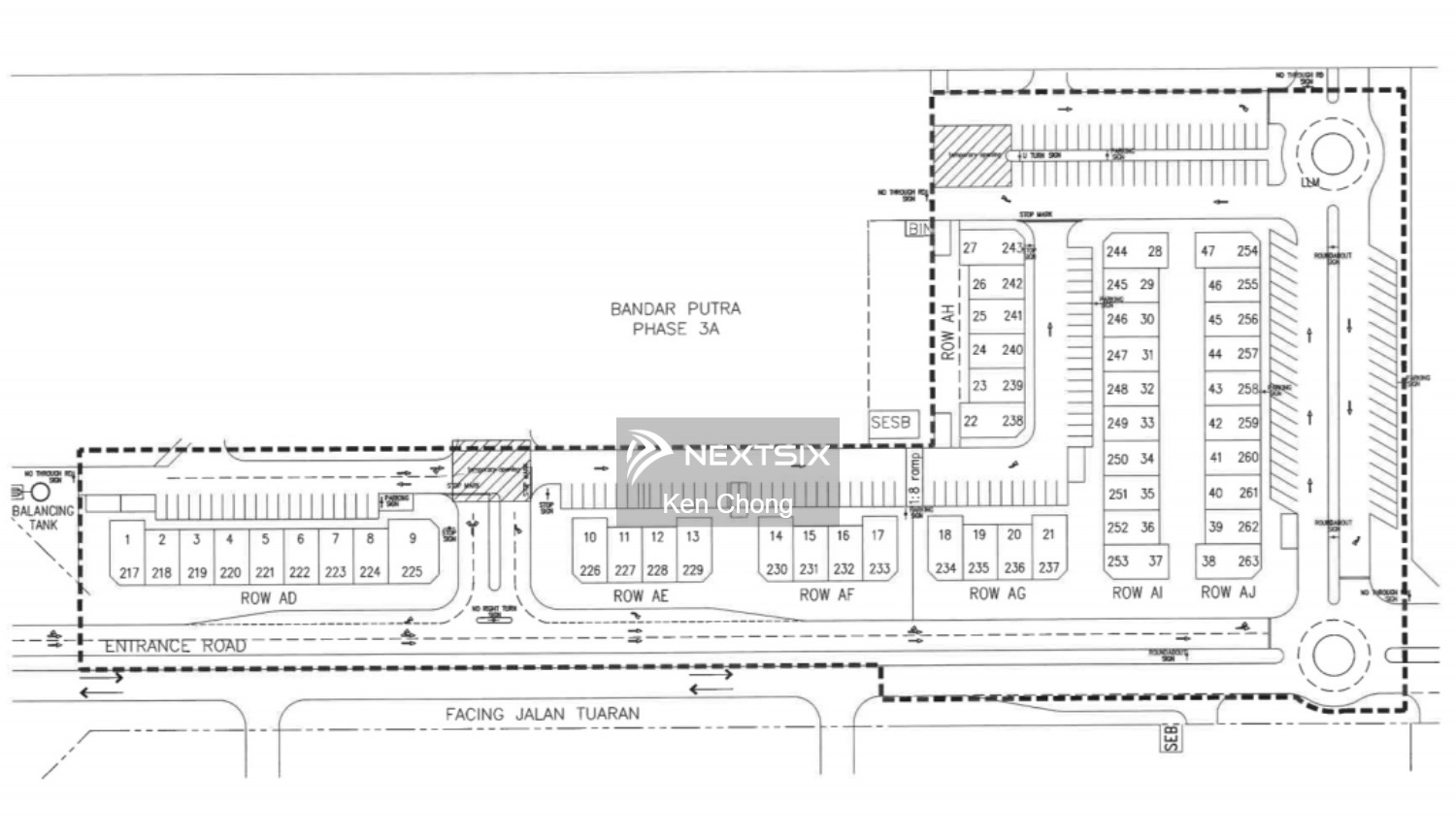
Storey Plan
Property Details
Listing Category
Property Listing
Property Category
Property Type
Tenure
Property Furnishing
Description
Bandar Putra Ph3A| Menggatal| Tuaran Bypass| Pan Borneo| McDonald| KKIP๐ฌ Developing Area ๐๏ธ beside Roadside of Tuaran By pass and easy to access to Pan Borneo Highway ๐ฃ๏ธMcdonald & Petronas & Bandar Sierra Grand Merdeka ๐ฌ๐ช๐ซ Completed 2 Storey Shop Office ๐ฌ ๐๏ธ๐๏ธ๐๏ธ 5 Acre OC obtained ready to move in Leasehold until 2087 Total: 47 unit shoplot 18โ feet celling height *Corner* Land Area๏ผ 1,830 sqft Built-up Area : 25' x 46' (2,087 sqft) *Intermediate* Land Area๏ผ 1,329 sqft 25' x 40' (1,802 sqft) ๐ฐ๐ฐ๐ฐ For Sale: From RM 6xx K For Rent: From RM 2,000 per month Booking Fee: RM 5,000 (Refundable with bank rejection letter) ๐ Free Legal fee for SPA Contact for more detail ๐๐๐ Ken Chong (REN 30285) 016-8453845 The Roof Realty Learn more ๐๐๐ https://wasap.my/60168453845/BPM
Facilities
๐ข Business Centre
๐ช Mini Market
Nearby

Mortgage Calculator
Loan Amount
RM 0
Disclaimer
The results from this calculator are provided as a general basis for information and do not constitute approval from any bank or financial institution. Any person acting in reliance of this information does so entirely at their own risk. The Next Six Sdn Bhd is not responsible for any loss arising directly or indirectly as a result of any action or omission made in reliance of any information presented.























